家庭影院案例
北京市壹号庄园别墅
基本情况简介
方案实施方类别:影音设计师
地理位置:北京市壹号庄园别墅
用户需求的基本描述:满足超高清4K影像回放,主流的多声道家庭影院音响系统,专业的卡拉OK娱乐系统,可以在线看网络大片、电视直播及高清游戏设备,环保舒适的装饰风格,友好的智能操作体验。
周边布局概括性描述:别墅地下室空间
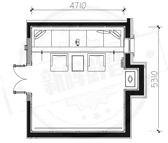
面积:5310mm×4710mm×2750mm
方案总造价:28万元
所用器材列表
信号源设备
电视机顶盒
亿格瑞网络硬盘播放机
视频设备
投影机:Epson(爱普生)TW-9400 4K
投影幕:XY画框透声投影幕布
音响设备
主音箱:MAGNAT(密力)THX-100
环绕音箱:MAGNAT(密力)THX-200
低音炮:MAGNAT(密力)THX-300 SUB
全景声音箱:MAGNAT(密力)ICQ-82
功放:DENON AVC-X8500H
娱乐设备
JBL 8100卡拉OK音箱
JBL定制效果器和功放
雷客点歌机
智能系统
C4智能影音控制系统
影院的构建过程、声学和光学处理及特别设计
本案于2018年3月份开始,从声学装修设计到设备选购摆位,每个细节均由铭电影音多名技术人员会商后决定。本着操作简单,效果出众原则,公司先后3次对工程不同阶段进行声场测试,力争做到施工的各个节点声学问题的处理。

原始布局图

影音室平面布局图
和客户沟通整体家具布局以后,用定做的柜子来解决设备存放问题,同时也固定了所有设备线路的走向。整体设备方案预置得到业主的认同,剩下的就是和装修设计师的沟通,装修风格大方向不能改变的情况下,如何把声学材料融入进去?


家装设计师做好风格造型后,我们进行声学材料的安置,在这个过程中,由于家装设计师和工长无法满足我们的工艺要求。为了给业主呈现良好的影音体验,我们承担了影音室的龙骨结构基础层以及透声结构面层的建造。双方通过合作,最终将一个满意的作品交给业主。

系统调试与设计者心得
历时2年付出的等待是值得的。视频方面,有爱普生TW9400 4K投影机和XY透声幕的加持。4K HDR的色彩表现,全面超越了一般院线的色彩准确性,让业主轻松体验高素质4K影像。

音频这块采用Magnat(密力)的音箱系统,支持杜比全景声,且通过严苛的THX Ultra2认证,是品质很高的家庭影院系统。天龙X8500H合并机全面支持三大主流沉浸式音效,让业主能够享受到4K沉浸式家庭影院体验。

整体风格与效果
顶部星空灿烂、墙壁的淡雅布艺装饰、居家风格的沙发以及色彩跳跃的抱枕,让整个影音室流淌着简单大气的风格。整体兼顾各种功能性需求,考虑多种设备的存在,搭配智能设备实现简单快捷的操作。

视觉感突破传统严肃的风格,更接近于家的感觉。通过设备的搭配与调教,实现理想的观影体验。更让业主满意的是,高端影音设备和精心构建的声学环境,所带来的美妙观影体验。


